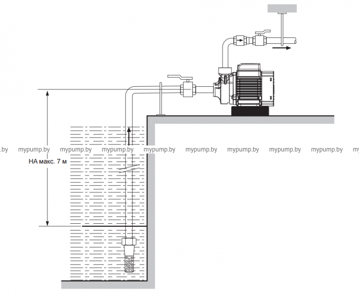
Нормальновсасывающий вихревой насос Wilo-HiPeri 1-4 используется для водоснабжения, полива, орошения, а также для использования дождевой воды. Идеально подходит для длительного режима работы. Высота всасывания до 8 метров.
Гарантия 2 года.
Характеристики товара
-
Основные:
- Wilo
- Германия
- г.Минск, пер.Липковский, д.32
- Поверхностный
- Водоснабжение
- Вихревой
- Нет
-
Габариты и Материалы:
- 207
- 5
- Чугун EN-GJL-200
- Нержавеющая сталь 1.4305 [AISI 303]
- Латунь CW617N
- Графит/Керамика/NBR
-
Гидравлические:
- Да
- 40
- 2,4
- 8
- Чистая вода без осаждающихся веществ, Холодная вода, Дождевая вода, Питьевая вода
- +5...+60 °C
- 6
- Нет
- <70
-
Электрика:
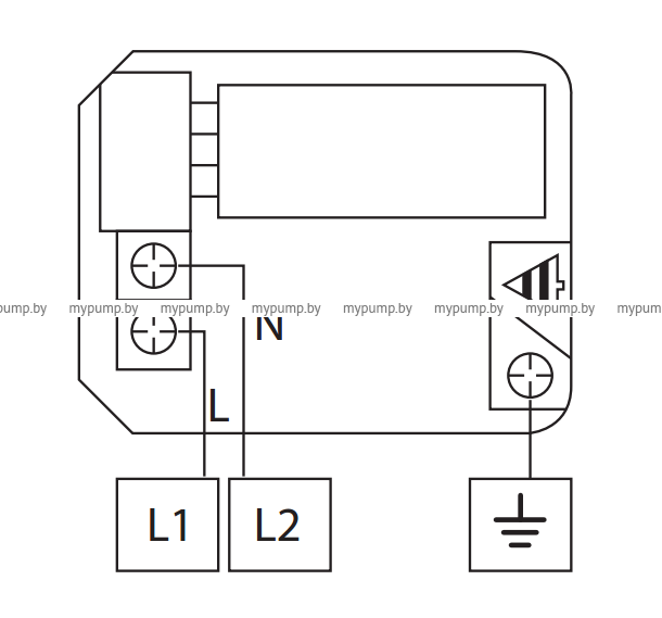
- 1~230 В, 50 Гц
- 0,55
- 20
- Опционально
- От перекачиваемой среды
- Нет
- IP X4
-
Подсоединение к трубопроводу:
- Резьбовое, Rp 1
- G1
- Rp 1
- Пока нет отзывов
Все технические характеристики предоставлены официальными источниками заводов-производителей и носят ознакомительный характер. Для получения более полной и точной информации просим обращаться к нашим специалистам.
info@mypump.by





